Menu Close

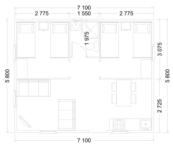
42m2 Units

42m2 Units - Flat roof

  • House dimensions: 5.800m width x 7.100m length
  • Total floor space: 42m2